オフィスのフロアプラン例

このテンプレートは、以下の製品で動作します。

Lucidchart logo
このテンプレートを使用

*チームプランおよびエンタープライズプラン向け

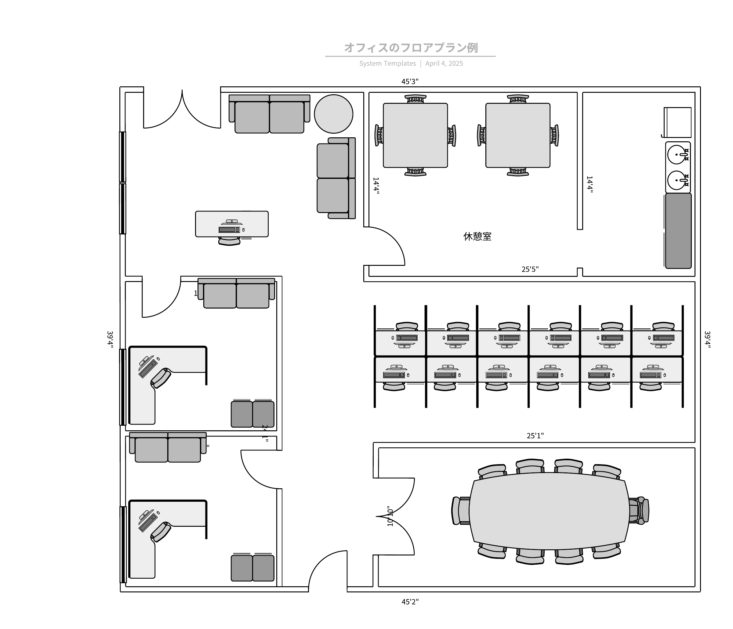
このオフィスのフロアプランテンプレートは以下のような用途に役立ちます。

- オフィス内の部屋、空間や物理的機能間の関係を視覚化する。
- 空間内での動線を図示する。
- 建築段階前に潜在的な課題を特定し、再設計を行う。

このテンプレートを開き、ユースケースに合わせてカスタマイズ可能なオフィスのフロアプラン図の例を詳しく確認してみましょう。

このオフィスのフロアプランテンプレートは以下のような用途に役立ちます。

  • オフィス内の部屋、空間や物理的機能間の関係を視覚化する。
  • 空間内での動線を図示する。
  • 建築段階前に潜在的な課題を特定し、再設計を行う。

このテンプレートを開き、ユースケースに合わせてカスタマイズ可能なオフィスのフロアプラン図の例を詳しく確認してみましょう。

関連テンプレート

特性要因図 テンプレートに移動

特性要因図

次と併用:

特性要因図 テンプレートに移動

組織図 (名前、役職、部門、写真) テンプレートに移動

組織図 (名前、役職、部門、写真)

次と併用:

組織図 (名前、役職、部門、写真) テンプレートに移動

バブルマップの例 テンプレートに移動

バブルマップの例

次と併用:

バブルマップの例 テンプレートに移動

ソリューション

  • デジタル変革
  • クラウド移行
  • 新製品の開発
  • すべて表示

はじめに

製品

  • Lucidspark
  • Lucidchart
プライバシー法的事項Cookie のプライバシーに関する選択クッキーポリシー
  • linkedin
  • twitter
  • instagram
  • facebook
  • youtube
  • glassdoor
  • tiktok

© 2025 Lucid Software Inc.